北京 [切换] 央视合作品牌
:400-160-5188
基本信息
小区名称:
丽都壹号
房屋面积:
80㎡
房屋户型:
两居室
装修风格:
现代简约
装修造价:
60000
案例简介
本套案例朝阳区丽都壹号,业主是两个年轻人,比较精致,保留两个卧室,其实原始户型就可以满足业主的基本生活需求,但是对于精致的人来说,需要更高的需求!

客厅

客厅

客厅是空间视觉重点,采用了深色调背景墙,将空间的气质紧紧的锁定在这里,喝一杯咖啡,弹一钢琴曲,诗意十足。

门厅

门厅

原来是没有玄关的,空间打开门一览无余,私密性不好的同时,观赏性也大打折扣!本案例新增加一个入户玄关,空间整体来说层次感,品质感增强很多!

卧室

卧室

主卧并没有做太复杂的造型,简约,有气质!

餐厅

餐厅

业主有一架钢琴,放在入户玄关转折处,放在这,文艺气息立刻就体现出来了!

厨房

厨房

钢琴占据了原来的餐厅位置,厨房做出开放式,新增加了餐厅,原本采光不好的厨房,也变得明亮起来。

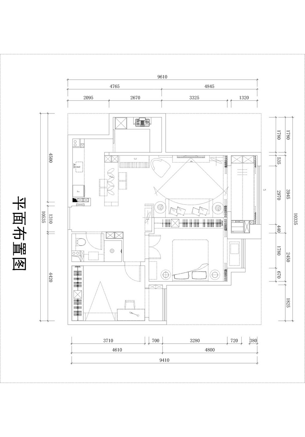
平面图

平面图

平面图

平面图

预约本案设计师

400-160-5188

7x24小时售前咨询热线

Copyright © 2026北京龙发建筑装饰工程有限公司 版权所有

京ICP备13015127号-1

免费获取报价